1341 Holly Avenue, Imperial Beach, CA 91932 – END UNIT in small complex with just 1 ROOM that shares a wall and tons of natural light!




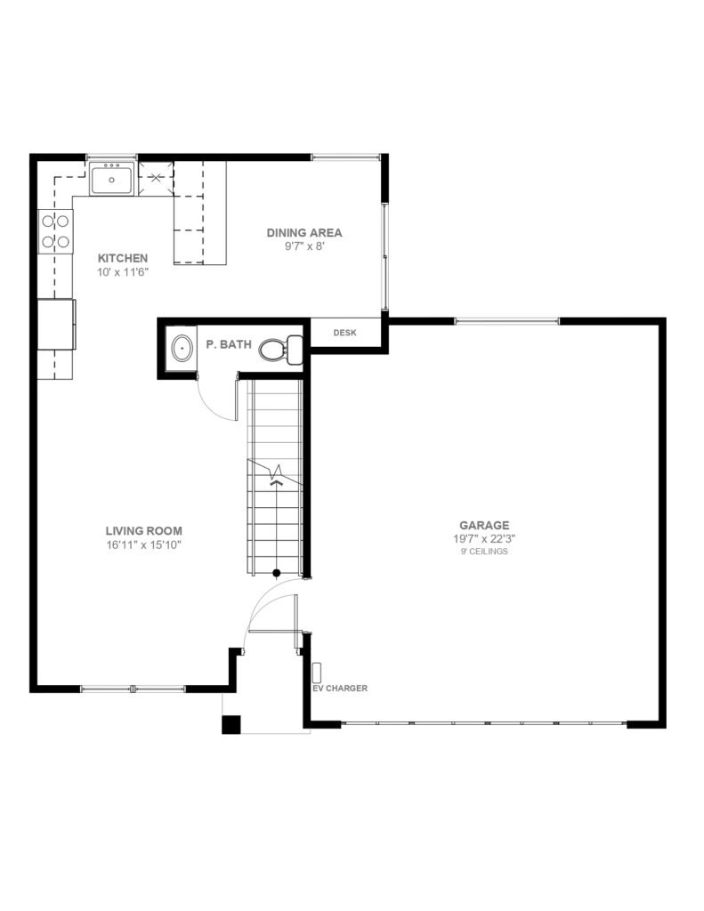
Newer construction (built in 2022), VA-Approved and recently refreshed. Attached oversized 2-car garage boasts a tankless water heater and high-powered hook-up for EV. Large, low-maintenance private patio right off the kitchen/dining PLUS tanning balcony.










Separate laundry room with side-by-side washer/dryer, right off the oversized Primary Suite that boasts a walk-in closet and en-suite bath. Other highlights include a GAS STOVE, WiFi HVAC Thermostat for central Heat/AC, Milgard Windows, Oak-Engineered Wood Floors, Solar-Ready Roof and Builder’s Warranty!



Not to mention a prime location, less than 2 miles to the beach, restaurants, shops, nightlife, Silver Strand and Freeway!








Jessica Mose | 858-736-5668 | Jessica@KenPecus.com | DRE#: 01882433
Available for: $797,000
The Pecus Group at MatchPoint brokered by eXp Realty of California, Inc.
2900 North Park Way, San Diego, CA 92104 & 1019 Isabella Ave., Coronado, CA 92118
Additional properties listed for sale by MatchPoint brokered by eXp Realty, Inc.
- For Sale – Imperial Beach - February 27, 2026
- Sold – Escondido - January 20, 2026
- Sold – Point Loma - January 20, 2026

























